Boliger
Lavenergiboliger
Hytter
Industri
Kontor og forretningsbygg
Undervisninsgbygg, skoler og barnehager
Helsebygg
Rehabilitering/ombygging
Prosjektadministrasjon
Totalentrepriser
Konkurranser
DAK / IT
Workshop
Boliger
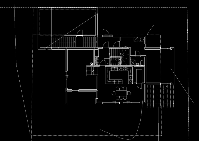
Hansmarkvegen 44
Tromsø, enebolig, bruttoareal ca. 250 m².
2003