Om Oss  
 
Prosjekt  

 
På tegnebordet  
 

Skoler, undervisningsbygg, barnehager

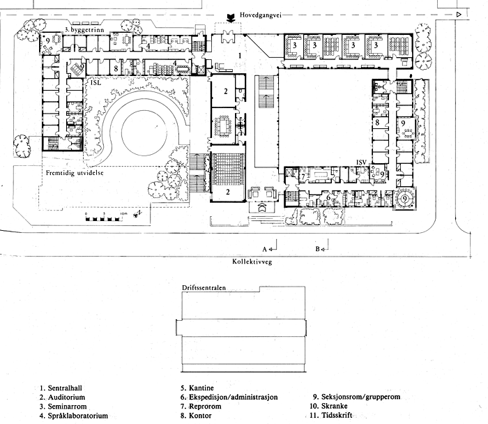
Universitetet i Tromsø
Samfunnsvitenskaplig Fakultet, bruttoareal ca. 8750 m².
1979-83
SBED Universitetet i Tromsø: ISL/ISV: Institutt for språk og litteratur og Institutt for samfunnsvitenskap

 

illustrasjon: Ole A. Krogness





foto: Truls Teigen