Boliger
Lavenergiboliger
Hytter
Industri
Kontor og forretningsbygg
Undervisninsgbygg, skoler og barnehager
Helsebygg
Rehabilitering/ombygging
Prosjektadministrasjon
Totalentrepriser
Konkurranser
DAK / IT
Workshop
Totalentrepriser
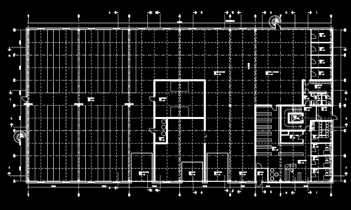
TSI tomta Tromsø
Tiltakshaver: SKANSKA AS. Forprosjekt for kontorer, verksted og lagerarealer, bruttoareal ca. 3’500 m².
2008-2009